
【 微信掃碼咨詢 】
13534248169
0755-23505442

不銹鋼多袋式過濾器在不同環節的使用中,都要注意不銹鋼多袋式過濾器的過濾效率,換個話說,就是要保持不銹鋼袋式過濾器的水質穩定。...
了解詳情
金屬加工行業很多環節都需要使用到單袋過濾器的,不僅使用單袋過濾器來過濾工業用水,還會使用到單袋過濾器來過濾金屬液壓油,金屬染料等。下面介紹一下金屬加工單袋式過濾器使用相關標準。...
了解詳情
由于很多袋式過濾器都是根據客戶要求定制的,要求越精細,價格越高。通常價位是幾百到幾千不等。且不同的廠家使用的技術也不一樣,價格浮動較大。那影響袋式過濾器價格的因素有哪些呢?...
了解詳情
多袋式過濾器是指一個不銹鋼罐體中安裝有2個或2個以上濾袋的袋式過濾器。多袋式過濾器相比于單袋式過濾器來說,產水量更大,不銹鋼罐體口徑更大,更符合大型工業過濾生產使用需求。多...
了解詳情
前置過濾器時工業用水處理中非常重要的一環,前置過濾器在工業過濾環節中通常起到的是粗濾作用,過濾精度在10-600μm之間。前置過濾器的價格一般是根據具體工藝環節來的,在很多大中型工廠來說,過濾器多為定制,不同需求價格也不同。...
了解詳情
袋式過濾器設備有很多種,不同類型有不同的作用,袋式過濾設備主要包括前置袋式過濾器,中間環節袋式過濾器等。其過濾精度值一般在1-600μm之間,袋式過濾器按照不同的分類標準有不同的類型。下面通過幾個分類來簡單的介紹一下袋式過濾器。...
了解詳情
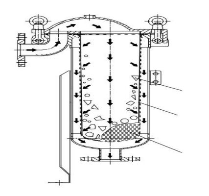
不銹鋼袋式過濾器抗壓力強,水質穩定,產水量大,是大中型工業處理過濾用水的理想產品。雖然不同廠家生產的不銹鋼袋式過濾器大小不一,壁厚也不同,但是總體結構是一致的。所以安裝方法基本上也是大同小異。接下來介紹一下不銹鋼袋式過濾器安裝指南。...
了解詳情